Tarampa Lodge Residences

Lowood/Minden Rd, Tarampa, Qld


CONTACT US TODAY> CONTACT US TODAY>

Tarampa Lodge Residences

The story of Tarampa Lodge is based upon the first generation of Rothwell's - Dorothy.  In 1978 while working as a nurse in regional Victoria, Dorothy identified a severe need for accommodation for those who were homeless.  With a little research Dorothy found there was nothing in Queensland, so with a few guests they decided to move to the Sunshine State and established Tarampa After Care Centre. 

Maintaining the family tradition, there have been 3 generations of Rothwell's who have managed and maintained Tarampa Lodge and its vision to support those in the community with special needs. 

In 2017 the organisation was faced with the biggest changes since its inception in 1978.  The introduction of the National Disability Insurance Scheme (NDIS) added a whole new dimension to the level of services offered to existing residents.  Housing 101 was commissioned to design and construct affordable self-contained accommodation for Tarampa Lodge.

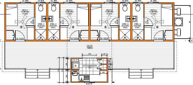
After assessing the site and requirements Housing101 advised the most cost effective and timely solution for meeting Tarampa's requirements to adapt pre-approved mining accommodation.  By adding external finishes, verandahs and kitchenettes, Housing101 was able to provide an outcome that complements and enhances the existing accommodation within the peaceful and communal environment.  Each building includes four single bedrooms with their own ensuite and leads onto a generous covered deck, separate kitchen and laundry pod.  

Built to maintain a full accredited level 3 Residential Service, Tarampa Lodge continues to offer a safe home environment for people with varying disabilities. 

Housing101 - Your Building Project Partner creating your End to End customised accommodation solution.

CONTACT US TODAY> CONTACT US TODAY>

For all your design and construct needs, Housing101 has the expertise and knowledge to help your idea become a reality.

Speak to one of our team members on 0401 021 566 for more information or Contact Us