Accessible Master Granny Flat

Beachmere,  Qld 


CONTACT US TODAY> CONTACT US TODAY>

A home fit for a Queen

Our client was looking for a capable, communicative and collaborative designer and builder to deliver a Granny Flat to their specifications and expectations. They had spent considerable time developing their plans and requirements. One of which was that the design be accessible for an elderly person. 

After discussions with several builders, they were unable to come to a mutually agreeable contract and requested on social media for a new builder with a professional capability and strong customer focus to assist. 

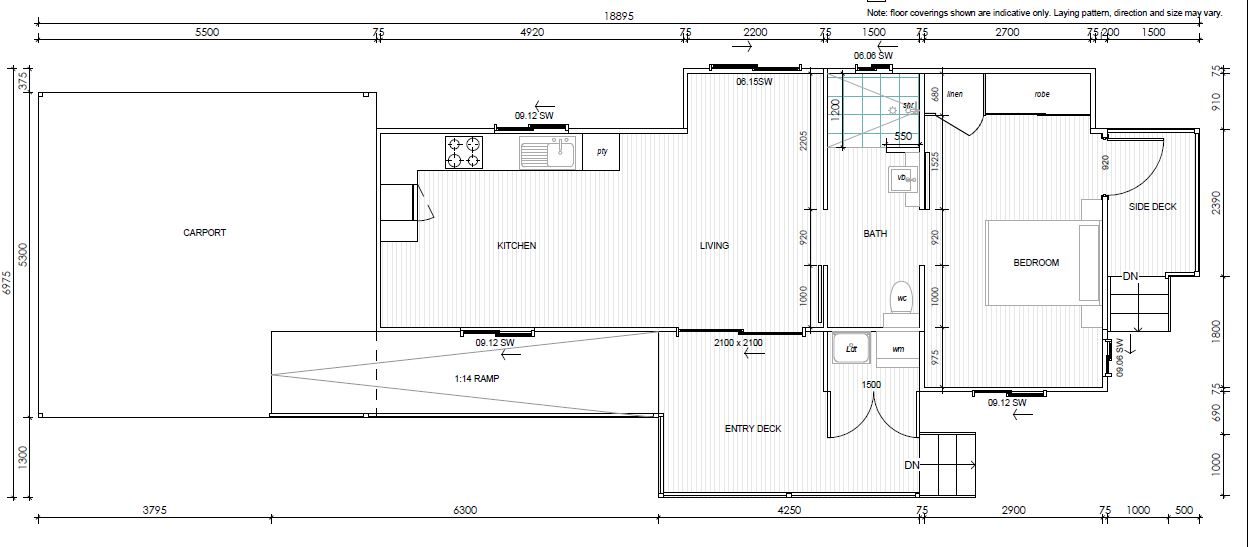
We had several meetings to assess the best location, clarify their requirements and suggest improvements to their original design. We provided a couple of options, which were variations of our existing plans, for accessible villas and were able to keep within their budget. Our accepted design was also influenced by our SDA (Specialist Disability Accommodation) knowledge as shown by the bathroom, bedroom and kitchen layout.  

As a result, this fully accessible Master Granny Flat provides all the requirements and more requested by the owner.  

Our end to end process is able to reduce the time and cost of preparing for approvals by reducing the need for external consultants. This provides a better outcome as the initial concept and original vision of the owner is maintained.


Housing101 - Your Building Project Partner creating your End to End customised accommodation solution.

CONTACT US TODAY > CONTACT US TODAY >

“Your creativity, diligence, attention to detail, transparency and your pragmatic, honourable and honest approach to your work is both commendable and admirable. 

I have been mentioning your company name everywhere as the gold standard in customer engagement in building and construction in your market. 

From my experience, fundamentally understanding your customer's requirements and the many nuances that drive them are critical to the successful requirements gathering, planning and building processes and, most importantly, an enduringly positive outcome. Housing101 have demonstrated that capacity consistently and with flexibility, creativity, passion and purpose. 

You have consistently worked to establish genuine trust in what is a significant investment and life change for your customers. 

We are so happy we found Housing101 and your sincere commitment and capability to deliver a considerate, quality outcome." 

- Brad Day

For all your design and construct needs, Housing101 has the expertise and knowledge to help your idea become a reality.

Speak to one of our team members on 0401 021 566 for more information or Contact Us