Dependent Secondary Dwelling

Mt Mee,  Qld 


CONTACT US TODAY> CONTACT US TODAY>

Separated dependent living 


Once again we were recommended to this client by a previous customer to provide solutions for a challenging building project. The client wanted to build a secondary dwelling on their property to provide accommodation for a family member.  

The scope was for a suitable dwelling to provide independence and privacy from the main dwelling.

The site had limited access. It was in a steep wooded area therefore council had restrictive overlays to be overcome including bushfire and landslide hazards.  

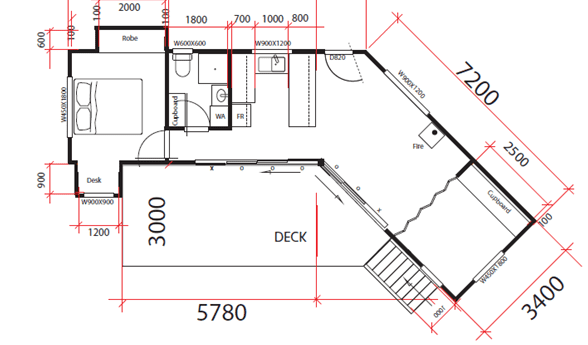
Working closely with the client on their initial design, several changes were made until we decided on the “boomerang” shape to make the most of the views from Maroochydore to Bribie Island. This also provided additional benefits to the client including the flexibility to have a second bedroom, an access ramp with internal accessibility features. By using the existing contours, parking for cars under the building was also created.  

To reduce the time on site Housng101 built two steel modules off site. These were then craned into position. The structural steel building materials also provided a structurally superior building compared with a conventional timber structure. The added bonus of a steel structure provides further protection from bushfire and termites.

The response from our client -  “Construction of a second dwelling for son Mark on our 40 acre block at ocean view required that the cottage took full advantage of an outlook from Bribie Island to the glasshouse mountains. Access was difficult on a steep block and there were budgetary constraints. Jon addressed these issues enthusiastically always with our input. He showed an outstanding design competence with a determination to find the best end result. We are entirely satisfied with the outcome. “

Housing101 - Your Building Project Partner creating your End to End customised accommodation solution.

CONTACT US TODAY > CONTACT US TODAY >

For all your design and construct needs, Housing101 has the expertise and knowledge to help your idea become a reality.

Speak to one of our team members on 0401 021 566 for more information or Contact Us